VERKAUFT!! geräumige ETW in ruhiger, bevorzugter Lage von Neunkirchen
VERKAUFT!! geräumige ETW in ruhiger, bevorzugter Lage von Neunkirchen
Eckdaten
- Art Etagenwohnung
- Lage 66538 Neunkirchen
- Kaufpreis 128.000,00 €
- Hausgeld 275,08 €
- Wohnfläche ca. 112 m²
- Zimmer 2
- Baujahr 1981
- Einbauküche ja
- Vermietet nein
- Bezugstermin kurzfristig
- Fahrzeit Hauptbahnhof 4 min
- Fahrzeit nächste Autobahnauffahrt 4 min
- Fahrzeit nächster Flughafen 20 min
- Immobilien-ID 5166
- Provision 3,57 % inkl. MwSt.
Immobilie
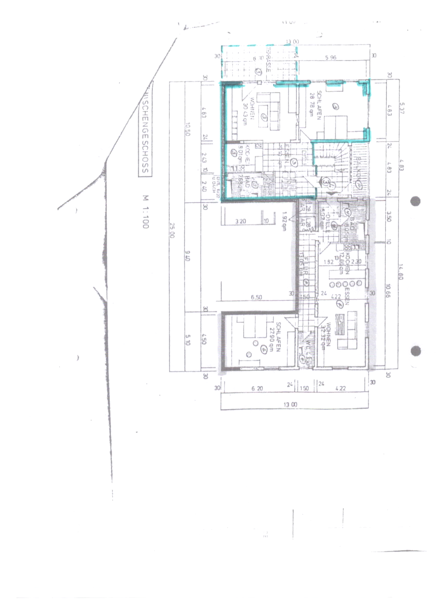
Diese große Eigentumswohnung befindet sich in einem 6-Fam.-Haus im bevorzugten Wohngebiet von Neunkirchen.
Lage
Bedingt durch die gute Infrastruktur ist Neunkirchen eine beliebte Stadt zum Arbeiten und Wohnen.
Die Immobilie liegt in einer sehr ruhigen Sackgasse.
Ausstattung
Die Wohnung ist modern gestaltet mit offenem Wohn-/Essbereich. Vom Wohn-/Esszimmer gelangt man auf eine große teilweise überdachte Terrasse mit einer Fläche von ca. 53 qm. Aus dem großen Schlafzimmer mit 2 Fenstern können zwei Räume gestaltet werden. Ein modernes Bad sowie ein Abst.-Raum sind vorhanden. Die Wohnung ist gefliest. Im Preis enthalten ist eine Einbauküche. Gerne können auch angepasste Möbel kostenlos übernommen werden.
Im KG befindet sich ein kleiner Abst.-Raum.
Sonstiges
Die Wohnung kann kurzfristig bezogen werden.
Herzlichen Dank für Ihre Anfrage.
Wir werden diese so schnell wie möglich bearbeiten.








